Load CAD Model
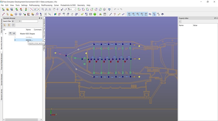
This options allows users to Load CAD model to Graphical Use Interface. Flow Simulator allows users to overlay/integrate the 3D digital CAD with the “.flo” models. Users can import geometry information in the “.iges/.stp” form. This will help in visualizing the engineering problem in greater detail. It allows better 3D model building experience by mapping of elements & chambers to iges Vertices. It also allows the user to import CAD in the “.iges/.stp” form & and creates elements automatically using all geometrical information of diameter, length, angle to updates input automatically.
