SS-V:2060 ピン接合クロスの面内振動

テスト番号VM07両端がピン接合のクロスの最初の8個の固有周波数を求めます。

定義



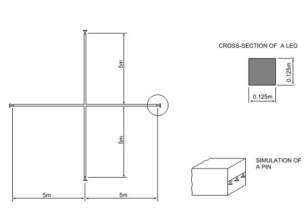
図 1.

ピンは、直線に適用されるゼロ変位を介してシミュレートされます。クロスの前面は、面外変位によって固定されます。

単位はSIです。

材料特性は以下の通りです:
特性
弾性係数
2e+11 N/m2
ポアソン比
0.3
質量密度
8000 kg/m3

結果

以下の表は、モードをまとめたものです。
  基準解 SimSolid %差異
モード1 [Hz] 11.336 11.312 -0.21%
モード2 [Hz] 17.709 17.810 0.57%
モード3 [Hz] 17.709 17.840 0.74%
モード4 [Hz] 17.709 17.840 0.74%
モード5 [Hz] 45.345 45.130 -0.47%
モード6 [Hz] 57.390 57.360 -0.05%
モード7 [Hz] 57.390 57.370 -0.03%
モード8 [Hz] 57.390 57.550 -0.28%
1 NAFEMS, SBNFA (November 1987), Test 1.